PRETVARAČI TLAKA I DIFERENCIJALNOG TLAKA

SMART TRANSMITERI

NIVOREGULATORI

SIGNALIZATORI NIVOA
 

   

 

Pretvarači tlaka

 

PRETVORNIK TLAKA I DIFERENCIJALNOG TLAKA 0,2%

 

 

Karakteristike:

-         diferencijalnog tlaka

-         protoka

-         razine

-         tlaka

-         apsolutnog tlaka

 

 

PRIMJENA

           

            Pretvornici DP 151 – diferencijalnog tlaka, GP 151 – pretlaka, HP 151 – diferencijalnog tlaka za visoki statièki tlak, HDP 151 – visokog diferencijalnog tlaka i AP 151 – apsolutnog tlaka služe za precizno mjerenja protoka, diferencijalnog tlaka, tlaka i podtlaka.

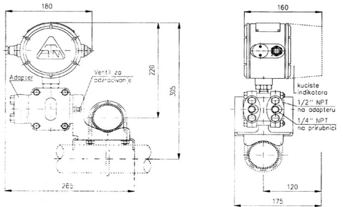
            Izvedba æelije i kuæišta elektronike dozvoljava da se pretvornik postavi na otvorenom prostoru. Nosaè koji se isporuèuje sa pretvornikom, omoguæava jednostavnu montažu na horizontalnu i vertikalnu cijev vanjskog promjera 50-60mm. Pretvornik je atestiran kod S-komisije pa se preko ureðaja za napajanje u Exi izvedbi ili zener barijera može spojiti u samosigurni krug i upotrijebiti u prostoru ugroženom eksplozijom. Osnova pretvornika je kapacitivna mjerna æelija firme Rosemount poznata po svojoj pogonskoj sigurnosti i neosjetljivosti na vibracije. Izborom materijala æelije (SS316, Monel, Hastelloy c-276 ili Tantal), prirubnica, adaptera i odzraènih ventila (È.4573) može se ostvariti otpornost pretvornika i na vrlo agresivne medije. Prikljuèci su: ¼ - 18 NPT na prirubnicama i ½ - 14 NPT na adapterima, a elektrièni kabel ulazi u kuæište kroz plastiènu uvodnicu Pg 13,5.

            Statièki tlak kod pretvornika diferencijalnog tlaka ili preoptereæenje kod pretvornika tlaka je za æeliju M3 140 bar, a za mjerne æelije M4, M5, M6, M7 i M8 140 ili 310 bar. Preoptereæenje mjerne æelije M0 je 520 bar. Izvedba elektronièkog pojaèala omoguæava kontinuirano podešavanje mjernog raspona u odnosu 6:1. poèetak mjernog podruèja može se izdignuti ili potisnuti i do 500% mjernog raspona (kraj mjernog podruèja ne smije prelaziti max. mjerni raspon). Pri izboru mjerne æelije poželjno je izabrati što širi mjerni raspon. Ureðaj se napaja preko dvije žice po kojima teèe i signalna struja (dvožièni sistem 4 do 20mA). Kada se želi signal 0 do 20mA treba upotrijebiti pretvarači signala 4 do 20mA/0 do 20mA

            Pretvornik može biti opremljen s ugraðenim pokaznim instrumentom s linearnom skalom 0 do 100% ili s korijenskom skalom, ili digitalnim LCD pokazivaèem.

 

Pretvarači tlaka

 

 

 

TEHNIČKI PODACI

 

 

MJERNO PODRUÈJE

-         Mjerni raspon

-         Poèetak mjernog podruèja

 

 

Kontin. podesivi (vidi pod. za narudžbu)

Potiskivanje ili izdizanje do 500% mjernog podruèja

IZLAZNI SIGNAL

4 do 20mA

NAPAJANJE

12 do 35V-(12 do 30V-u Exi krugovima)

OPTEREÆENJE

0 do Rmax,                          Rmax=(U-12)/20mA

U = napon napajanja

TEMPERATURA OKOLINE

-40°C do +105°C za æeliju

-30°C do +70°C za pojaèalo

TOÈNOST MJERENJA

+/- 0,2% podešenog mjernog podruèja

LINEARNOST

+/- 0,1% podešenog mjernog podruèja

STABILNOST

+/- 0,2% podešenog mjernog podruèja za 6 mjeseci

HISTEREZA I PONOVLJIVOST

0,05% podešenog mjernog podruèja

PRIGUŠENJE IZLAZNOG SIGNALA

Kontinuirano podesivo izmeðu 0,2 i 1,7 sekunde

UTJECAJ STATIÈKOG TLAKA

Za nulu: +/- 0,25% za 140 bar, na mjerno podruèje: -1 +/- 0,25 za 140 bar (sistemska greška – može se uzeti u obzir pri podešavanju)

UTJECAJ TEMPERATURE OKOLINE

Pri max. mjern. rasponu +/- 0,2%/10K

Pri min. mjern. rasponu +/-0,2%/10K

Za æeliju M3 greške su dvostruko veæe

UTJECAJ VIBRACIJE

+/- 0,05% gornje granice raspona za svaki g do 200Hz u bilo kojoj osi

DOZVOLJENO JEDNOSTRANO PREOPTEREÆENJE

Za æeliju M3 do 140 bar, za æeliju M4, M5, M6, M7 i M8 do 140 bar ili 310 bar za æeliju M0 do 520 bar

MATERIJAL U DOTICAJU S MEDIJEM

Æelija: nehrðajuæi èelik (È.4573)

Prirubnice i adapteri: nehrðajuæi èelik (È.4573)

Brtva: Viton

MASA

cca. 6kg

ZAŠTITA

IP 56 prema DIN 40050.

 

 

 

 

 

 

 

 

 

 

 

 

 

 

 

 

 

 

 

 

 

 

 

 

 

 

 

 

 

 

 

 

 

 

 

 

 

 

 

 

Pretvarači tlaka

 

 

PODACI ZA NARUDŽBU

 

PRETVORNIK TLAKA I DIFERENCIJALNOG TLAKA 0,2%

 

 

Mjerenje:

Æelije:

 

 

 

 

 

 

 

 

DP-dif. tlaka

(statièki tlak 140 bar)

GP-tlaka

 

 

HP-dif.tlaka

(statièki tlak 310bar)

HDP-visokog dif. tlaka

(statièki tlak 140bar)

AP-apsolutnog tlaka

M3, M4,M5

 

 

M3,M4,M5,M6

M7,M8,M0

M4,M5,M6,M7

 

M6,M7,M8,

 

M4,M5,M6,M7,M8

 

0

 

 

1

 

2

 

3

 

4

 

 

0

1

 

2

 

 

 

Indikator:

Bez indikatora

Indikator s linearnom skalom 0-100%

Indikator s korjenskom skalom 0-10

Digitalni indikator

 

2

 

 

 

 

3

4

5

 

 

 

 

 

 

 

 

 

 

 

 

 

 

 

 

Materijal: Prirubnica – adapter:

È4573

È4573

È4573

 

È4573

 

È4573

È4573

 

È4573

Æelije:

 

 

316SS

Monel

Hastelloy

c-276

Tantal

 

316SS

Hastelloy

c-276

Tantal

Punjenje æelije:

 

Silikonsko ulje

 

 

 

 

Fluorobul ulje

(za kisik)

 

 

 

 

 

 

0

0

 

0

0

 

1

 

1

1

 

 

 

1

3

 

5

7

 

1

 

3

5

 

 

 

Mjerni rasponi:

 

Æelija:

 

 

 

 

 

 

 

 

12/75mbar

60/380mbar

320/1900mbar

1,2/7mbar

3,5/21mbar

12/70mbar

70/420mbar

 

M3

M4

M5

M6

M7

M8

M0

 

 

 

 

 

3

4

5

6

7

8

0

 

 

Certifikati:

-Bez certifikata

-EExibIICT5(T4kod digitalnog pokazivaèa)

-Hrvatski registar brodova

-Ruski registar brodova

-Lloyd's Register of Shiping

-Državni zavod za normizaciju i mjeriteljstvo

 

 

 

 

 

 

 

 

0

1

2

3

4

5

 

 

 

 

 

 

 

 

 

 

 

 

 

 

 

 

 

 

 

 

 

 

 

 

 

 

 

 

 

 

 

 

 

 

 

 

 

 

 

 

 

 

 

 

 

 

 

 

 

 

 

 

 

 

 

 

SMART TRANSMITERI

 

SMART transmiteri i pretvarači tlaka

 

Primjena:
Precizni SMART transmiteri koriste se za mjerenje tlaka i nivoa u prehrambenoj, kemijskoj, drvnoj i sličnim industrijama. Visoka točnost osigurava široku primjenu u različitim tipovima industrija. Kućište transmitera je izrađeno od inoxa. Mjerno područje transmitera je od -1 do +60 bara. Transmiter je napajan 24V DC s jednim analognim izlaznim signalom 4-20mA i jednim relejnim kontaktom te digitalnim pokazivačem trenutne mjerne veličine. Procesni priključak je 1/2 ili 1" te postoje varijante u membranskoj izvedbi.Transmiter se jednostavno parametrira:mjerno područje,prigušenje,izlazni signal,tip prikaza preko tipke ili pomoću računala.

 

Smart PC setup i pretvarači tlaka

- kalibracija transmitera preko računala

 

 

 

 

 

Nivoregulatori

Model

Opis

Tehnièki podaci

Nivoregulatori

·          nivoregulatori za regulaciju vodostaja u parnim kotlovima i spremnicima

·          odobrenje inspektorata parnih kotlova

·          izvedba za posude s amonijakom

Radni tlak: max. 25 bar

Radna temp.: max 225°C

Magnetski prekidaè:

Bistabilan

Broj prekidaèa: max. 6

Zaštita: IP54

za stacionarne kotlove

za brodske kotlove

Nivoregulatori

·          nivosklopka: elektronièki relej i elektroda

·          za reguliranje razine tekuæine, za upravljanje signalnim ureðajima

·          elektroda za ugradnju u posude pod tlakom i otvorene spremnike

El. Relej

Napajanje: 220VAC

Preklopni kontakt: 50VA

Elektroda

Radni tlak: max. 13bar

Radna temp.: max 192°C

Provodni izolator

 

 

 

 

Signalizatori nivoa

Model

Opis

Tehnièki podaci

Pretvarači tlaka

·          signalizacija nivoa neagresivnih tekuæina, vode, lakih ulja, sokova u spremnicima i posudama pod atmosferskim ili pogonskim tlakom

Radni tlak: max. 16 bar

Radna temp.: max 75°C

Promjena vodostaja: 400mm

                                 200mm

Broj kontakata:

                         2 mikroprekidaèa

                         2 A, 250V,50Hz

Zaštita: IP54

Pretvarači tlaka

·          signalizacija nivoa s punim plovkom

·          mala sila uzgona aktivira magnetski prekidaè

Nazivni tlak:

                      NP40

                      NP250

Dozvoljena temp.:

                      -20..120°C

Prekidaè: 1A, 250V, 10VA

 

 

 

 

 

 VRH